dry_river_ltd.imot.bg Обяви 0 За нас Контакти
Продава 3-СТАЕН
град София, Сухата река
ул. Митрополит Панарет
211 200 €
413 071.30 лв.

(2 200 €, 4 302.83 лв./m2)
Цената е без ДДС
Коригирана в 21:59 на 13 май, 2026 год.
Обявата е посетена 448 пъти.
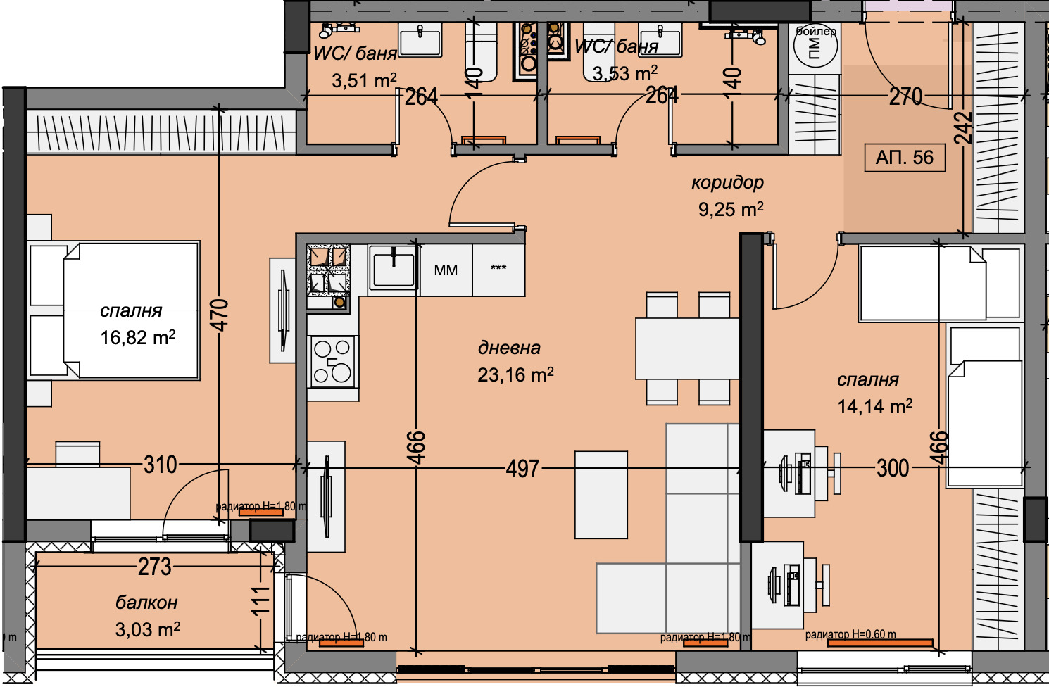
Площ:
96 m2
Етаж:
3-ти от 5
ТEЦ:
ДА
Строителство:
Тухла, Ще бъде въведен в експлоатация 2027 г.

Описание на имота:


ДИРЕКТНО ОТ ИНВЕСТИТОР! Представяме жилищни сгради Dry River в кв. Сухата река, р-н Подуяне, на 7 мин. пеш от Метростанция Хаджи Димитър и площад Родина, ул. Черковна.

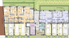
Проектът се състои от две жилищни сгради с общо озелено междублоково пространство с пейки и детска площадка, с ограда и контрол на достъпа с видеонаблюдение.
Строителството е с най-висок клас материали и изпълнение, а дизайнът - модерен и изчистен. Части от фасадата ще бъдат изпълнени със скъп окачен гранит за допълнителна въздушна бариера и стил.
Обръщаме специално внимание на хидроизолацията както в сутерена и покривите, така и по всички тераси на сградите като работим с най-скъпите хидроизолационни материали на американския световен лидер PENETRON.
Отопление и топла вода на ТЕЦ. Предвидили сме изводи за климатик и място за бойлер във всеки апартамент.

Начало на строителството: октомври 2025 г.
АКТ 16: октомври 2027 г.

Повече за района:
Комплексът се намира в изключително удобен и комуникативен район. На пешеходно разстояние има метростанция, автобусни спирки, детски градини, училища, голям парк 'Герена' с много детски площадки, спортен клуб 'Левски', предлагащ всякакви видове спорт за малки и големи, пазар, търговски центрове, супермаркети, сладкарница 'Неделя', пожарна служба, поликлиника- всичко необходимо за един спокоен и уютен жилищен квартал. 15 минути пеш от мол 'Сердика', театър 'София', парк 'Заимов'.

Тази част на кв. Сухата река е с ново модерно строителство и през последните години се облагородява все по-бързо. Съседните на нас сгради са вече напълно завършени.

Повече за проекта:
Dry River се състои от 80 апартамента, подземни и приземни гаражи и паркоместа, мазета, офиси, общи зелени площи с детска площадка, пейки и алея. Достъпът ще бъде контролиран, като ще бъде инсталирана и система за наблюдение. Има предвидено място за жива охрана при желание от ЕС както и общи пространства за велосипеди, детски колички и др.

Апартаментите са с различни изложения, разположения и квадратури, големи или малки тераси!

За повече информация относно материали, степен на завършване и контакти: www.dryriver.bg

Примерна схема на плащане:
20 % - при подписване на предв. договор;
20 % - Кота 0;
20 % - Акт 14;
20 % - Монтирана дограма на апартамента;
15 % - Акт 15;
5 % - Акт 16;

Схемите на плащане се изготвят индивидуално спрямо желанието и възможностите на клиента.
Съдействаме за кредит при преференциални условия.

Цени с ДДС:
1. Апартаменти: от 2100 евро/кв.м. без ДДС
2. Паркоместа и гаражи: от 22 000 евро без ДДС, в зависимост от големината
Особености
Тухла
Асансьор
С гараж
С паркинг
Интернет връзка
Видео наблюдение
Контрол на достъпа
За контакт:
0889507730

Този имот се предлага само на частни лица
Инвеститор:
ДРАЙ РИВЪР ООД
0889507730
ДРАЙ РИВЪР ООД logo
В imot.bg от 2025 г.
dry_river_ltd.imot.bg
Адрес:
област София, гр. София, ул. Ради Радев 18
http://www.dryriver.bg
ИЗПРАТИ ЗАПИТВАНЕ
ИЗПРАТИ ЗАПИТВАНЕТО

Продава 3-СТАЕН
град София, Сухата река
ул. Митрополит Панарет
Обява: 1c176779735275642

211 200 €
413 071.30 лв.
(2 200 €, 4 302.83 лв./m2)

Цената е без ДДС
ЗАПАЗИ ОБЯВАТА

Местоположение: град София, Сухата река, ул. Митрополит Панарет

Допълнителни данни за имотите в района и сравнение с други райони

Покажи

Период

и 5 месеца

* Средните цени са определени чрез медианна стойност